Das Wesentliche

  • Lage: südlicher Stadtrand von Garbsen-Horst
  • Wohnfläche: 185 qm auf drei Ebenen
  • Zimmer: 6
  • Baujahr: 1984
  • Grundstück: 609 qm
  • Fußbodenheizung auf allen Ebenen
  • Drei Bäder & Gäste-WC
  • Ein erneuertes Dach
  • Eine erneuerte Küche
  • ein erneuertes Bad
  • Energieverbrauch: 110,3 kWh/(qm a)
  • Fassade: roter Klinker

Das kommt hinzu

  • Ein Garten voller Blumen
  • Eine automatische Bewässerungsanlage
  • Bewässerung über eine Grundwasserpumpe
  • Ein Walnussbaum, unter dem man vor Mücken sicher ist
  • Ein Rasenroboter
  • Ein Schuppen mit Gartengeräten
  • Eine Garage (groß genug für einen SUV)
  • Südwest-Terrasse
  • Süd-Balkon

Und das auch noch

  • Eine Brennwertheizung
  • Thermo-Solarmodul auf dem Dach
  • Innenkamin und Außenkamin
  • Eine schnelle Internet-Anbindung
  • Rolladen an allen Fenstern im Erdgeschoss
  • Video-Kamera und Gegensprechen an der Klingel
  • Alarmanlage
  • Einbruchsicher gemäß Polizei-Beratung
  • Kameras mit Smartphone-Anbindung an der Haustür

Keller

Image

Erdgeschoss

Stacks Image 225

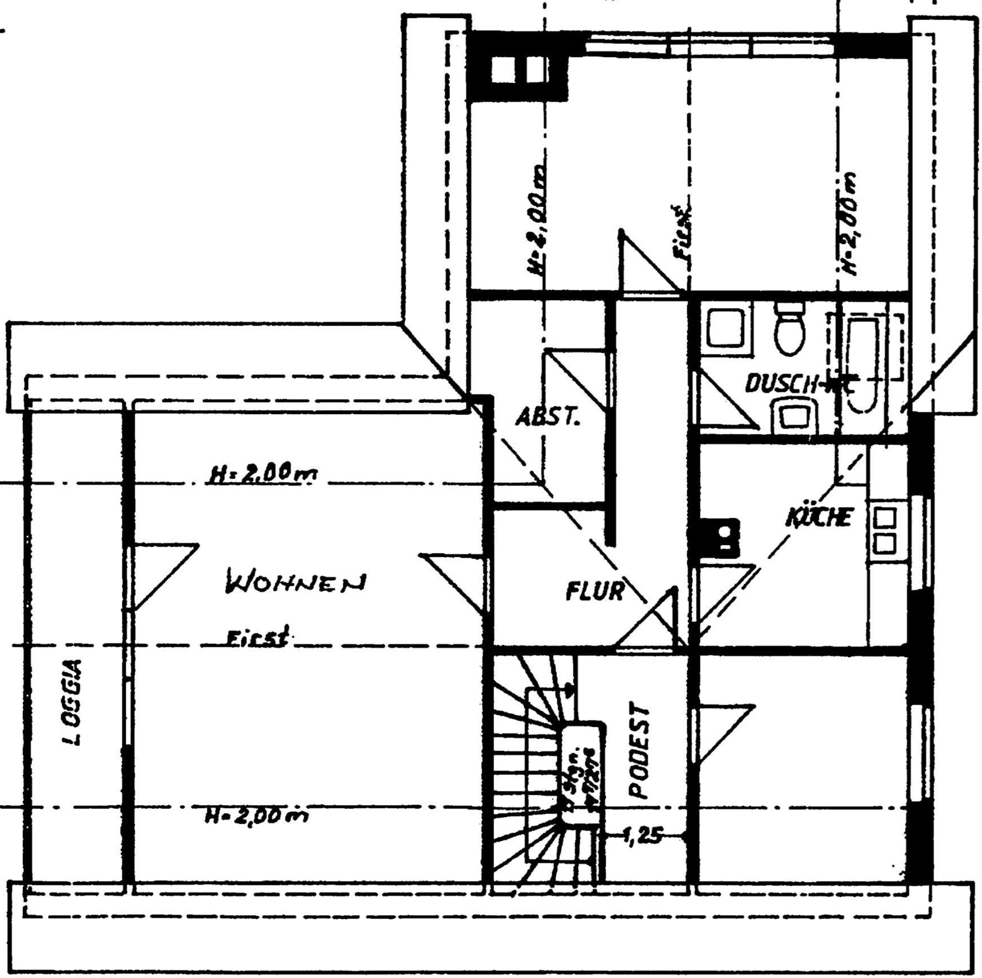
Obergeschoss

Stacks Image 231

Das Haus gilt als einbruchsicher. Aufgrund der Beratung durch die Polizei wurden Umbauten vorgenommen, z.B. sog. Pilzkopfsicherungen in den Fenstern eingebaut. Die Eingangstür wurde verstärkt und die Kellerfenster gesondert gesichert. Das Polizei-Siegel signalisiert Einbrechern, dass sie mindestens 15 Minuten brauchen würden, um in das Haus zu gelangen. Man sagte uns, dass die Einbrecher dann lieber zu einem Nachbarn gehen würden.


An heißen Sommertagen ist das ein sehr schöner Platz unter dem alten Walnussbaum….

Stacks Image 164